Exclusif

Montpellier (34000) Dépt Hérault (34), à vendre MONTPELLIER Appartement T2 de 33m² - Balcon

Réf : V2470098010 99 000 €

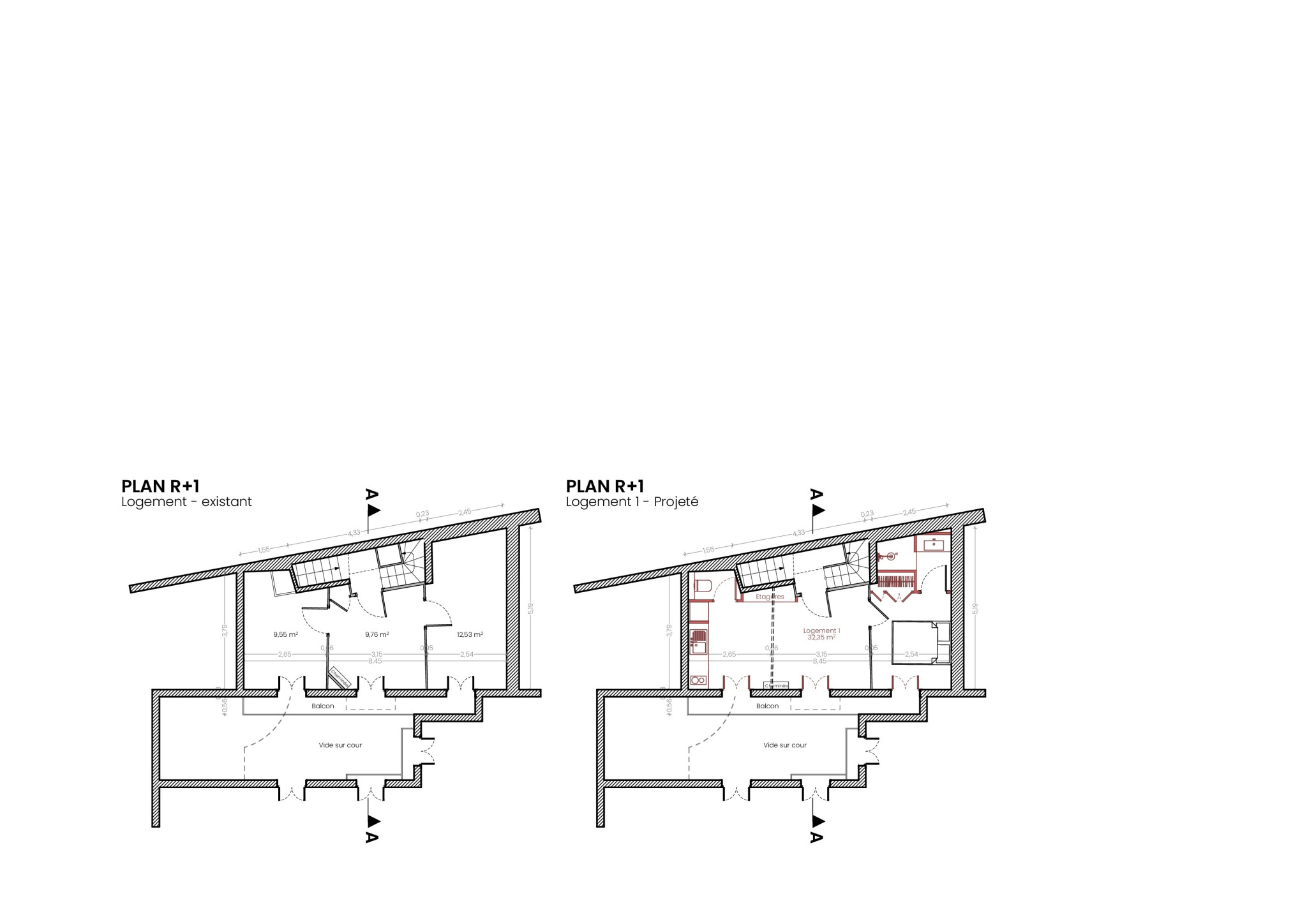
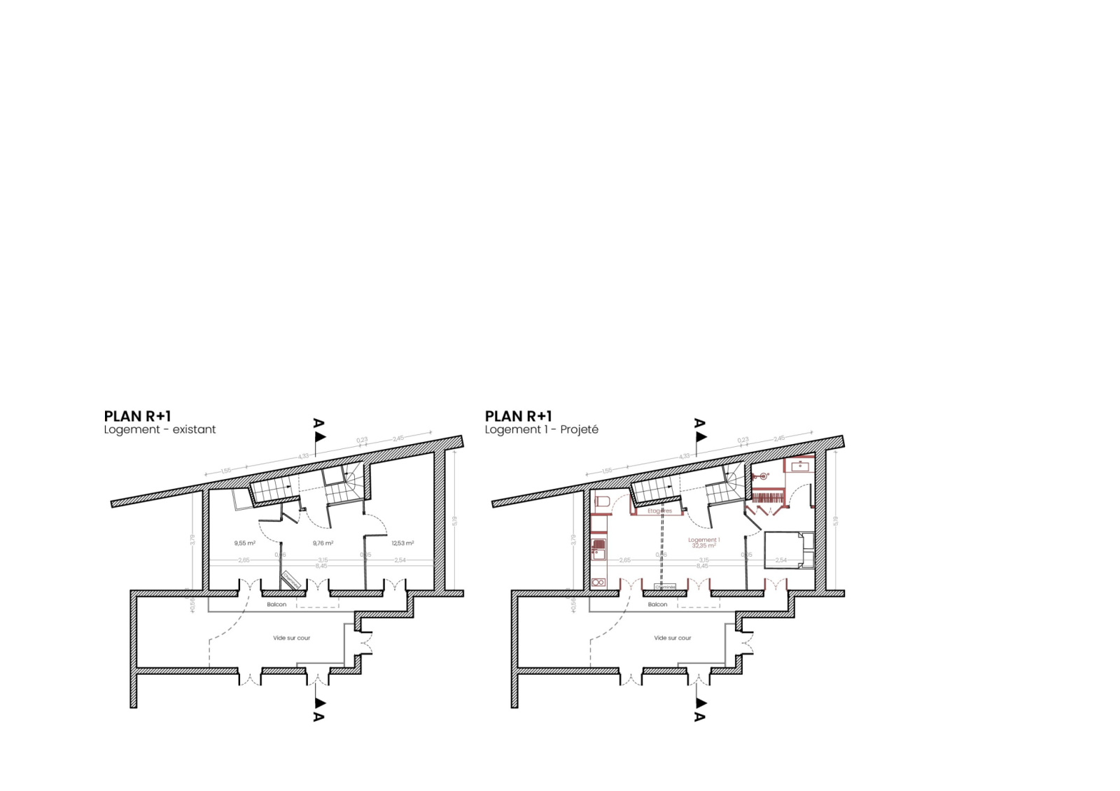
Montpellier Ecusson, Idéal Investisseurs / Idéal Déficit Foncier !! Superbe projet de Réhabilitation !! Cet appartement en plateau F2 de 33m² au 1er étage d'un immeuble Réhabilité !! Un emplacement de premier choix, hyper fonctionnel et très cosy. Proximité des Trams, commerces, écoles...Inutile de dire que cette merveille ne restera pas longtemps en vente et qu'il est urgent de se manifester si vous souhaitez visiter !!! Emplacement idéal, pour plus d'informations, un dossier est à votre disposition sur demande. Prévoir Budget travaux. Le plus : Eligible PTZ !! AGENCE JNCA - Johan NAVARRO - 06 47 39 77 65 - EI Agent commercial RSAC N° 518 935 812 - Ville du greffe : MONTPELLIER - Plus d'informations sur cif-montpellier.com (réf.1864)

TRAD_SIROCCO_Caracteristique Valeurs
Code postal 34000
Surface habitable (m²) 33 m²
Surface loi Carrez (m²) 33 m²
Nombre de chambre(s) 1
Nombre de pièces 2
Etage 1
TRAD_SIROCCO_Caracteristique Valeurs
Nb de salle d'eau 1
Balcon OUI
Exposition Est
Année de construction 1900
TRAD_SIROCCO_Caracteristique Valeurs
plan de sauvegarde NON
TRAD_SIROCCO_Caracteristique Valeurs
Prix de vente honoraires TTC inclus 99 000 €
DPE GES
DPE vierge
  • Commerces et santé
  • Loisirs
  • Ecoles
  • Transports
  • Pratique

Nos outils

Imprimer
Intéressé(e) par Ce bien ?

* Champ obligatoire

contacter l'agence

Les informations recueillies sur ce formulaire sont enregistrées dans un fichier informatisé par La Boite Immo agissant comme Sous-traitant du traitement pour la gestion de la clientèle/prospects de l'Agence / du Réseau qui reste Responsable du Traitement de vos Données personnelles. La base légale du traitement repose sur l'intérêt légitime de l'Agence / du Réseau. Elles sont conservées jusqu'à demande de suppression et sont destinées à l'Agence / au Réseau. Conformément à la loi « informatique et libertés », vous disposez des droits d’accès, de rectification, d’effacement, d’opposition, de limitation et de portabilité de vos données. Vous pouvez retirer votre consentement à tout moment en contactant directement l’Agence / Le Réseau. Consultez le site https://cnil.fr/fr pour plus d’informations sur vos droits. Si vous estimez, après avoir contacté l'Agence / le Réseau, que vos droits « Informatique et Libertés » ne sont pas respectés, vous pouvez adresser une réclamation à la CNIL. Nous vous informons de l’existence de la liste d'opposition au démarchage téléphonique « Bloctel », sur laquelle vous pouvez vous inscrire ici : https://www.bloctel.gouv.fr Dans le cadre de la protection des Données personnelles, nous vous invitons à ne pas inscrire de Données sensibles dans le champ de saisie libre.
Ce site est protégé par reCAPTCHA, les Politiques de Confidentialité et les Conditions d'Utilisation de Google s'appliquent.

Ces biens peuvent aussi vous intéresser
Nous suivre sur